dehaze
О КОМПАНИИ
Отзывы
Блог
Услуги
Личный кабинет
Новости
Вопросы и ответы
Вакансии
Политика конфиденциальности
ПРОДАЖА
Квартиры
Комнаты
Дома и коттеджи
Коммерческая
Новостройки
Земельные участки
Гаражи
Коммерческая земля
АРЕНДА
Квартиры
Комнаты
Дома и коттеджи
Коммерческая
Гаражи
Коммерческая земля
ИПОТЕКА
КОНТАКТЫ
3-к. квартира, 61.1 м²
Главная
ПРОДАЖА
Квартиры
Объект №178472
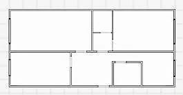
Квартира в панельном доме с изолированными комнатами.С/у совмещен,заменены межкомнатные двери. Состояние хорошее обои,на полу линолеум,стеклопакеты, на кухне фартук- кафель.
Ссылка на объявление:
https://ooopnk.ru/sale/saleapartments/178472
4 860 000
₽
+7 (951) 172-74-73
Лена Гавриловна
Оставить заявку
Кемеровская область - Кузбасс область, Кемерово, проспект Ленина, д 70А
Информация об объекте
Количество комнат
3-к квартира
Этаж
1
Площадь
61.1
Жилая площадь
45
Площадь кухни
6
Совмещенных санузлов
1
Окна
Двор + улица
Ремонт
Евро
Информация о доме
Тип дома
Панельный
Этажей в доме
5
Парковка
Наземная